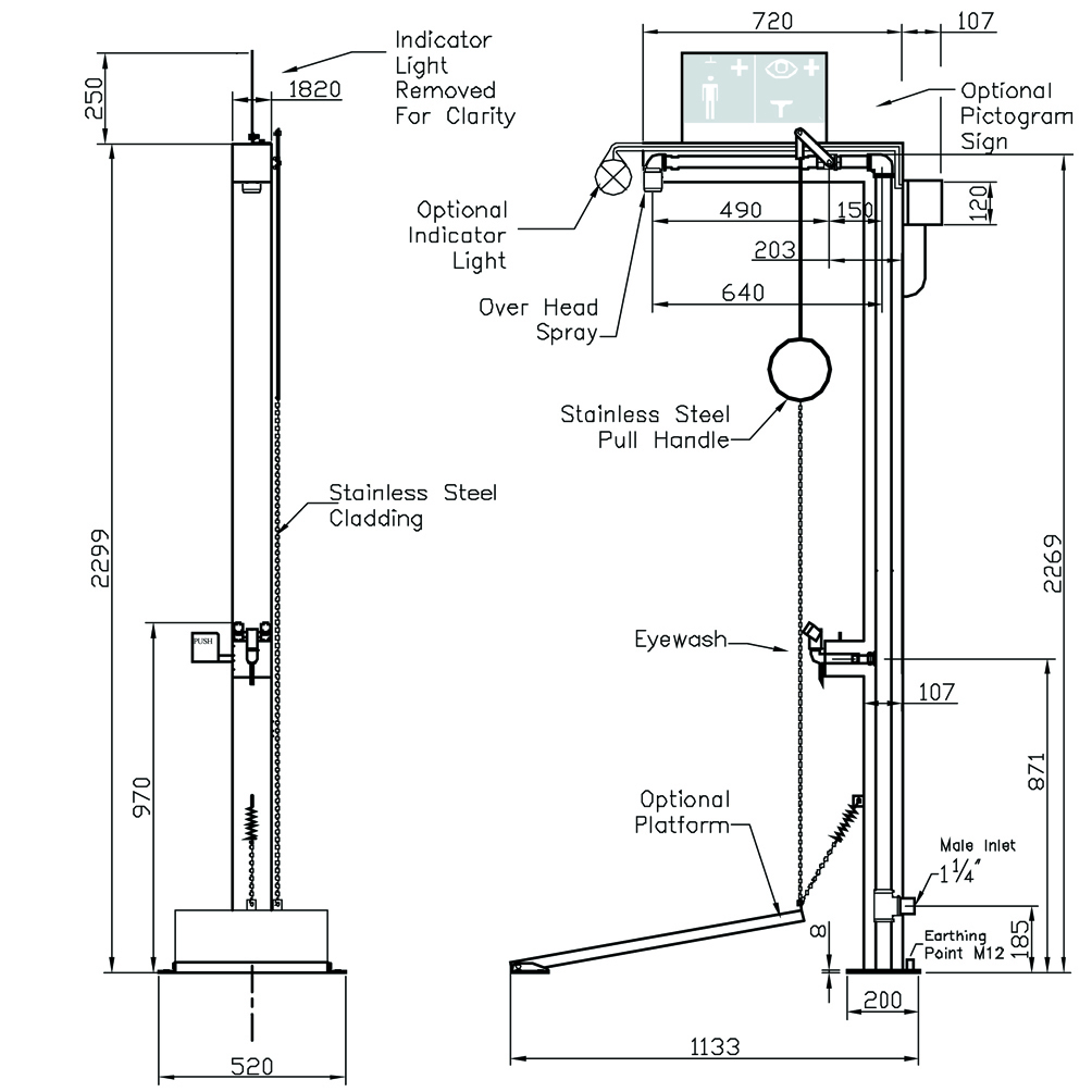
PremiumLine freestanding frost protected heated emergency safety shower with eye shower

Previous page: Frost protected heated safety showers
Next page: EconomyLine safety showers

Previous page: Frost protected heated safety showers
Next page: EconomyLine safety showers